监控4米、6米、8米、10米、12米监控立杆基础是多大?
2022-11-01 11:38:30
1253
一般的小区监控立杆基础大多数是500(长)×500(宽)×600(深)MM,或者600*600*800MM,一是因为小区的基础立杆基本上都是3-5米,二是很少有横臂,那么交通监控的立杆基础是多大呢?
本期我们就来详细了解下关于交通监控4M、6M、8M、10M、12M、14的监控项目,立杆基础是多大。
交通各种型号立杆基础
交通监控的立杆大部分都是有横臂的,来看下。
一、6米立杆,4米横臂

二、6米立杆,6米横臂

三、8米立杆,8米横臂

三、10米立杆,10米横臂

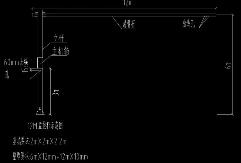
三、12米立杆,12米横臂

三、14米立杆,14米横臂
